Nhà lô phố tối ưu không gian sống, gắn kết các thành viên gia đình

Không gian ngôi nhà nổi bật với những đường nét thiết kế hài hòa, không gian được tối ưu hóa nhằm nâng cao chất lượng sống cho người sử dụng.

Thông tin công trình:

  • Tên dự án: Nhà lô phố 5×20 Mirai House
  • Địa điểm: Khu vực Hòa Xuân, quận Cẩm Lệ, Đà Nẵng
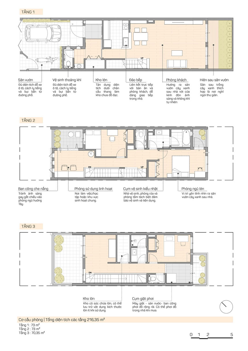
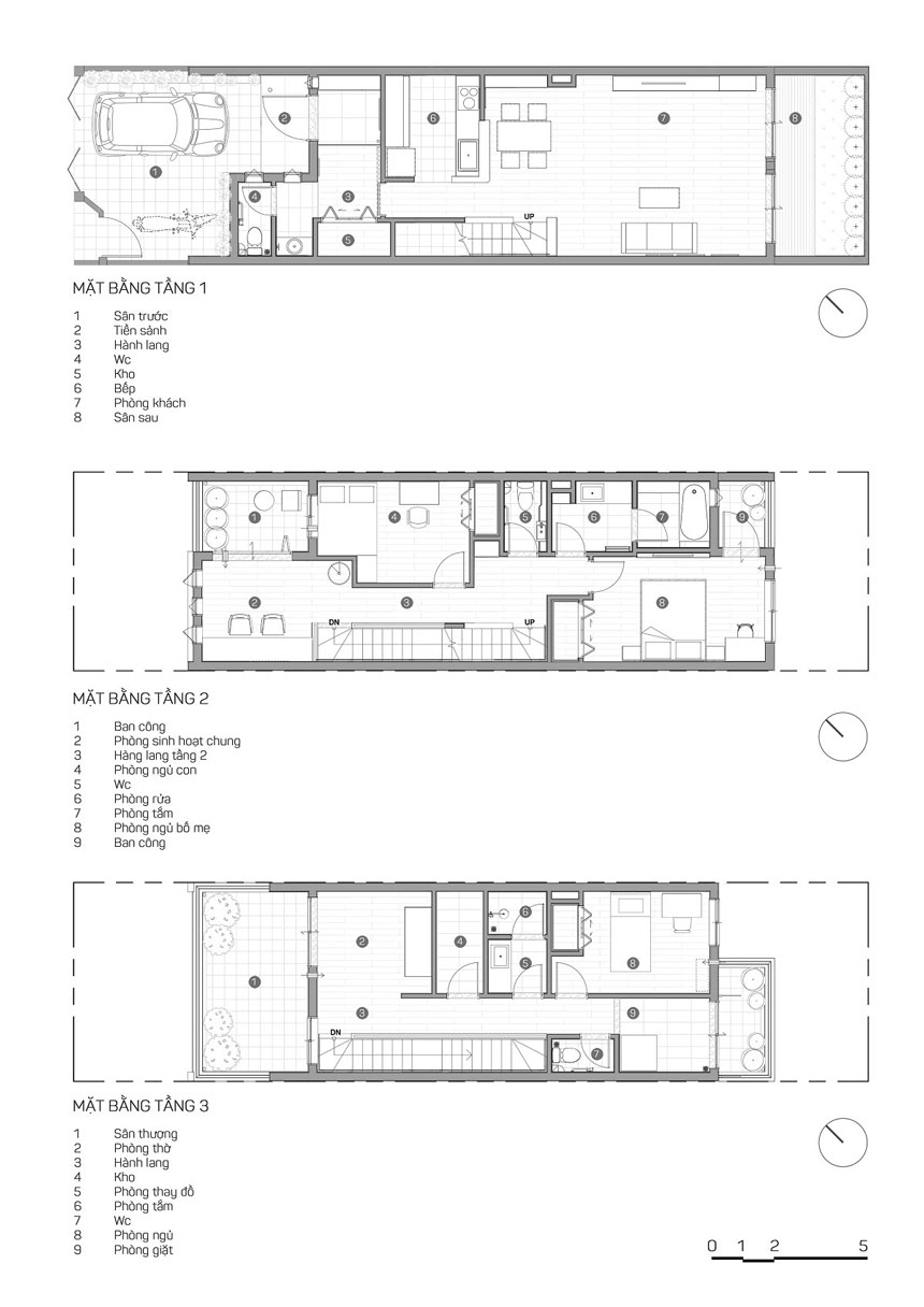
  • Diện tích khu đất: 5m x 20m
  • Đơn vị thiết kế và thi công: Công ty TNHH Mirai Japan Vietnam House
  • KTS chủ trì: TS.KTS Lê Phong Nguyên

Với mục tiêu xây dựng mẫu nhà lô phố kiểu mẫu áp dụng cho người dân Việt Nam, ngôi nhà được thiết kế và xây dựng dựa trên 6 tiêu chí sau:

Nhà lô phố tối ưu không gian sống, gắn kết các thành viên gia đình

1. Mẫu nhà mang tính phổ thông:

Ngôi nhà được thiết kế mang tính phổ thông, đề cao tính thực tế và dễ áp dụng tại Việt Nam. Với kích thước phổ biến của nhà lô phố hiện nay cùng đường nét thiết kế hài hòa, tối ưu hóa không gian nhằm nâng cao chất lượng môi trường sống cho người dân Việt Nam.

2. Ngôi nhà lấy gia chủ làm trung tâm:

Các không gian được thiết kế mang tính kết nối, đề cao sự tương tác giữa các thành viên trong các sinh hoạt gia đình.

Nhà lô phố tối ưu không gian sống, gắn kết các thành viên gia đình

3. Tối ưu hóa không gian kiến trúc:

Các không gian trong nhà được thiết kế với diện tích vừa đủ, kết hợp sân vườn trước và sau tạo môi trường sống có đầy đủ ánh sáng tự nhiên và độ thông thoáng. Các không gian được hình thành và kết nối dựa trên thói quen sinh hoạt, lối sống và tính kết nối giữa các thành viên.

Nhà lô phố tối ưu không gian sống, gắn kết các thành viên gia đình

4. Nâng cao chất lượng môi trường sống thông qua các chi tiết kiến trúc:

Các chi tiết kiến trúc được nghiên cứu và sử dụng nhằm nâng cao chất lượng môi trường sống như: Có tiền sảnh ngăn bụi, nhà vệ sinh riêng khô ráo, tay vịn tại các vị trí thiết yếu, rãnh chống trượt, cửa lưới và đặc biệt là hệ thống thông gió 24h.

Nhà lô phố tối ưu không gian sống, gắn kết các thành viên gia đình

5. Đề cao tính riêng tư của gia đình, tôn trọng tính cách của gia chủ:

Thiết kế tôn trọng tính cách của chủ nhà và các thành viên, không quá tập trung về mặt hình thức kiến trúc cũng như đơn giản hóa các vật liệu chi tiết nội thất nhằm tạo điều kiện cho chủ nhà có thể thổi hồn cũng như mang cá tính vào ngôi nhà sau khi vào ở.

6. Ngôi nhà thích ứng đại dịch Covid-19

Nhà lô phố tối ưu không gian sống, gắn kết các thành viên gia đình

Với hệ thống thông gió 24h liên tục, các không gian luôn được cung cấp khí tươi mỗi 2h một lần. Với các hệ thống họng cấp khí tươi có màng lọc, hạn chế việc lây lan dịch bệnh bởi virus có trong môi trường không khí.

(st)